Villa de 6 dormitorios en Dubai, UAE No. 1655
22 600 000 AED
28 754 AED/m²
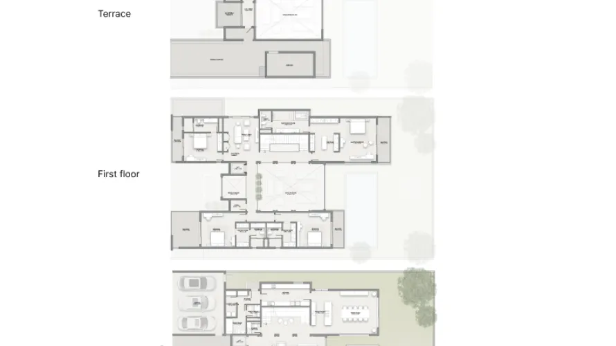
6
Dormitorios
786
Superficie habitable, m²
en el mapa
Características
- Cerca de la playa
