Роскошные виллы в рассрочку на острове Синия в Умм-аль-Кувейне
Остров Собха Синия (Sobha Siniyah Island) – это новый остров в Умм-эль-Кувейне в Объединенных Арабских Эмиратах, где строится предлагаемый проект вилл. Виллы с видом на пляж и море находятся в удобном доступе к Дубаю и Рас-эль-Хайме. С высоты птичьего полета проект выглядит как летящий в небе ястреб, что добавляет еще больше крутой атмосферы.
Виллы в Умм-эль-Кувейне, остров Синия, расположены в 10 минутах от ближайшего пляжа, в 40 минутах от международного аэропорта Шарджи, в 45 минутах от международного аэропорта Дубая, в 60 минутах от Бурдж-Халифа и Downtown Dubai.
Эти виллы, построенные на земельном участке площадью 1,5 млн м², предлагают множество удобств, таких как поле для гольфа, роскошные лодочные туры, смотровая терраса, вертолетная площадка, пляжный клуб, экопарк, аллея фиесты, ресторан под открытым небом, яхт-клуб, частный пляж с концепцией лагуны, общественный центр, торговый центр, зоны барбекю, тренажерный зал, фитнес-центр, террасы для йоги и загара, крытые и открытые игровые площадки, бассейны и кафе. Sinayah Island подарит спокойный образ жизни вдали от городской суеты. А бассейн длиной 6 км создаст незабываемую морскую атмосферу.
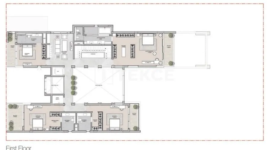
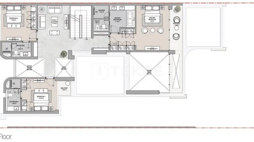
Виллы с 4, 5 или 6 спальнями состоят из 3 этажей. Каждая вилла имеет собственный сад, бассейн и парковку. На садовом уровне расположены гараж, комната для водителя, бассейн, столовая, кухня, прачечная, мастерская и спальня. На втором этаже – гостиная, спальни и балкон. На верхнем уровне находится просторная терраса. Это общий поэтажный план, но виллы могут отличаться по количеству спален и некоторым мелким деталям.
Свяжитесь с нами, чтобы приобрести одну из этих роскошных вилл с видом на море на престижном острове Синия, расположенном недалеко от Дубая и Шарджи. UAQ-00001
Вилла с 6 спальнями в Умм-эль-Кайвайн, ОАЭ №407
27 565 000 AED
19 011 AED/m²
6
Спален
7
Ванных
1450
Жилая площадь, м²
на карте
Вилла в Умм-эль-Кайвайн
Особенности
- Близко к аэропорту
- Вид на море
- Система "Умный Дом"
- Спутниковое телевидение
- Кондиционеры
